Stufe zurück

Ortspitze Passau – Zwei Eigentumswohnungen zum Entkernen, Sanieren und Ausbaue...

Dachgeschoss-ETW, D-94032 Passau, Kaufpreis: 399.000,00 €

Objektdaten

Kaufpreis €399.000,00 Wohnfläche m²151,81
Zimmer4 Etage4
Hausgeld €420,00 Online-Nr.8761530
Interne Nr.421321 Objekt-Nr.0-8761530

Details

Befeuerung
Wohnflächen
Bodenbeläge

Kurzexposé

Komplette Etage in historischem Altbau an der Ortspitze Passau – Zwei Eigentumswohnungen zum Entkernen, Sanieren und Ausbauen mit freiem Innblick

Das Gesamtgebäude befindet sich ein einem sehr guten Zustand. Es wurde über die Jahre laufend instandgehalten und bei Bedarf saniert. Der Baustil des Gebäudes sowie die Innenarchitektur sind im typischen Passauer Altbauflair gehalten und unterliegen dem Einzeldenkmalschutz. Im vergangenen Jahr wurde das komplette Dach des Gesamtgebäudes von zwei regionalen Fachfirmen komplett erneuert. Die angefallenen Kosten wurden vom Verkäufer bzw. der WEG in Form von einer Sonderumlage bezahlt.

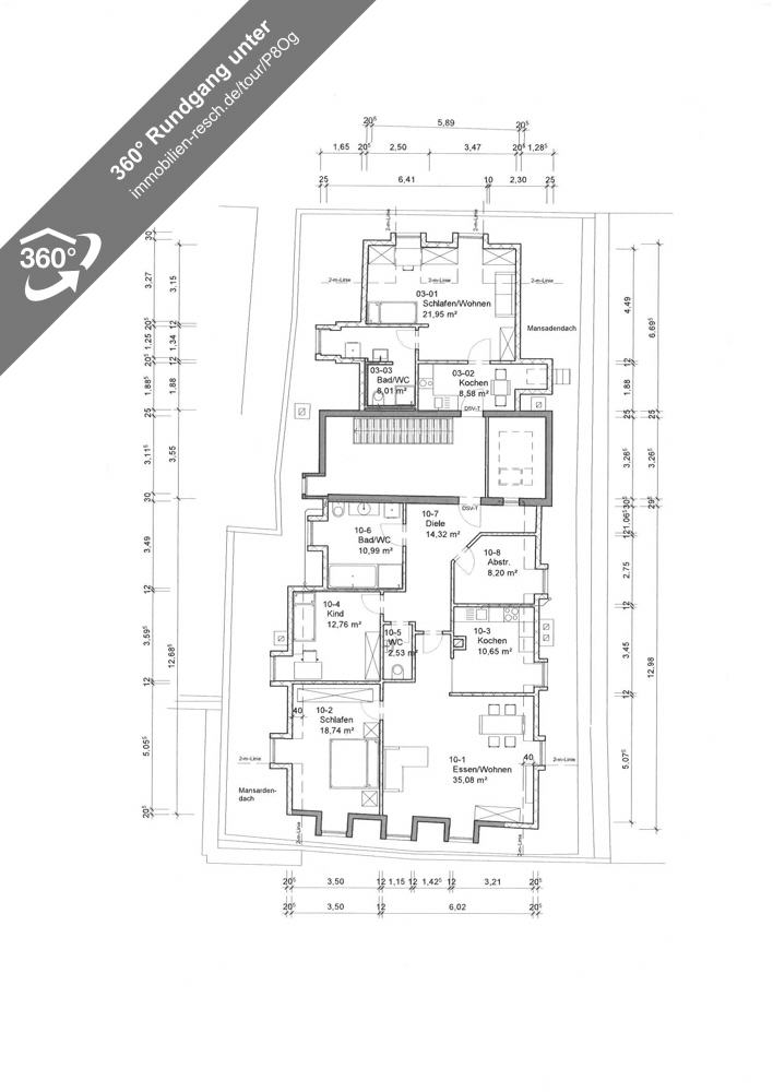
Angeboten wird die 4. Etage die sich auf zwei Eigentumswohnungen erstreckt. Der Eigentumsanteil der zwei Eigentumswohnungen am Gesamtgebäude liegt bei 149,57,/ 1000 Tsdl. Es ist kein Lift vorhanden.

Wenn die 4.Etage komplett ausgebaut werden würde, beträgt die Wohnfläche für beide Eigentumswohnungen zusammen ca. 151,81 m². Die Aus- und Umbaugenehmigungen liegen bereits vor.

Beide Wohnungen stehen derzeit leer.

Wohnung-Nr. 10/ 4.Etage

Wohnzimmer, Schlafzimmer, Kinderzimmer, Küche, Bad/WC, Diele.

Die Hausgeldvorauszahlung beträgt 300,00 € inkl. Rücklage und Elementarversicherung.

Die Wohnfläche der Wohnung-Nr. 10 beträgt nach dem Aus-und Umbau ca. 113,27 m² gesamt.

Wohnung-Nr. 3/ 4.Etage

Wohnzimmer, Küche, Dusche/ WC.

Die Hausgeldvorauszahlung beträgt 120,00 € inkl. Rücklage und Elementarversicherung.

Die Wohnfläche beträgt ca. 38,54 m².

Da es sich um ein denkmalgeschütztes Gebäude handelt, wird kein Energieausweis benötigt.

Maklercourtage: Der Verkauf erfolgt Provisionsfrei.

Kaufpreis:399.000,00 € gesamt

Lagebeschreibung

Bestlage in Passau. Die gegenständige Immobilie befindet sich an der Ortspitze in Passau Altstadt. Aufgrund der Inn-nahen Lage der Immobilie ist ein freier und unverbauter Blick auf den Fluss und die Passauer Innstadt möglich. Hier handelt sich um ein einmaliges Angebot da vergleichbare Immobilienangebote in dieser Top-Lage nur selten am Markt und mit viel Glück alle fünf Jahre angeboten werden.
Leben in der Stadtmitte und doch ein wenig außerhalb – ein Traum für Stadtmenschen, Singles oder Studenten. Alles was Sie brauchen ist in unmittelbarer Nähe und doch laden der schöne Passauer Altstadtflair und die Grünflächen rund um die Passauer Ortspitze zum entspannen ein. Über einen kleinen Spaziergang entlang am Inn zu Ihrer Linken und dem Passauer Markenbild der Altstadt zu ihrer Rechten gelangen Sie zu allen wichtigen Knotenpunkten im Passauer Stadtleben.
Objekt-Nr.: 0-8761530 · Interne Nr.: 421321 · Online-Nr.: 8761530 · Flächen- und Maßangaben sind ca.-Werte.
Es gelten die Allgemeinen Geschäftsbedingungen des Anbieters.

Immobilien-Schnellanfrage

Ich möchte mehr Infos zu diesem Objekt!
Herr Frau
Vorname*
Nachname*
Telefon
E-Mail*
Ich habe die Datenschutzerklärung gelesen und bin mit der Verarbeitung meiner Daten sowie einer Kontaktaufnahme einverstanden.*
Ausführliches Formular

Anbieter

PASSAUER Immobilien IVD

Resch & Söhne GmbH seit 1968

Dr.-Hans-Kapfinger-Straße 32

D-94032 Passau

0851/54088

0851/70876

E-Mail senden

Kommunikation:
Bürozeiten: Mo.-Fr. 09.00-16.00 Uhr, Samstag: geschlossen

weitere Wohnungen

55 m²179.000 EUR
76 m²150.000 EUR
68 m²268.000 EUR
59 m²169.000 EUR
Datenschutz  ·   Portal-Impressum  ·   Drucken...  ·  nach oben